foundation5+ architekten

Projekte

Martini-Quartier

Martini-Quartier Kassel - Konversion Brauereigelände

Quartiersplanung Martini-Quartier, Kassel

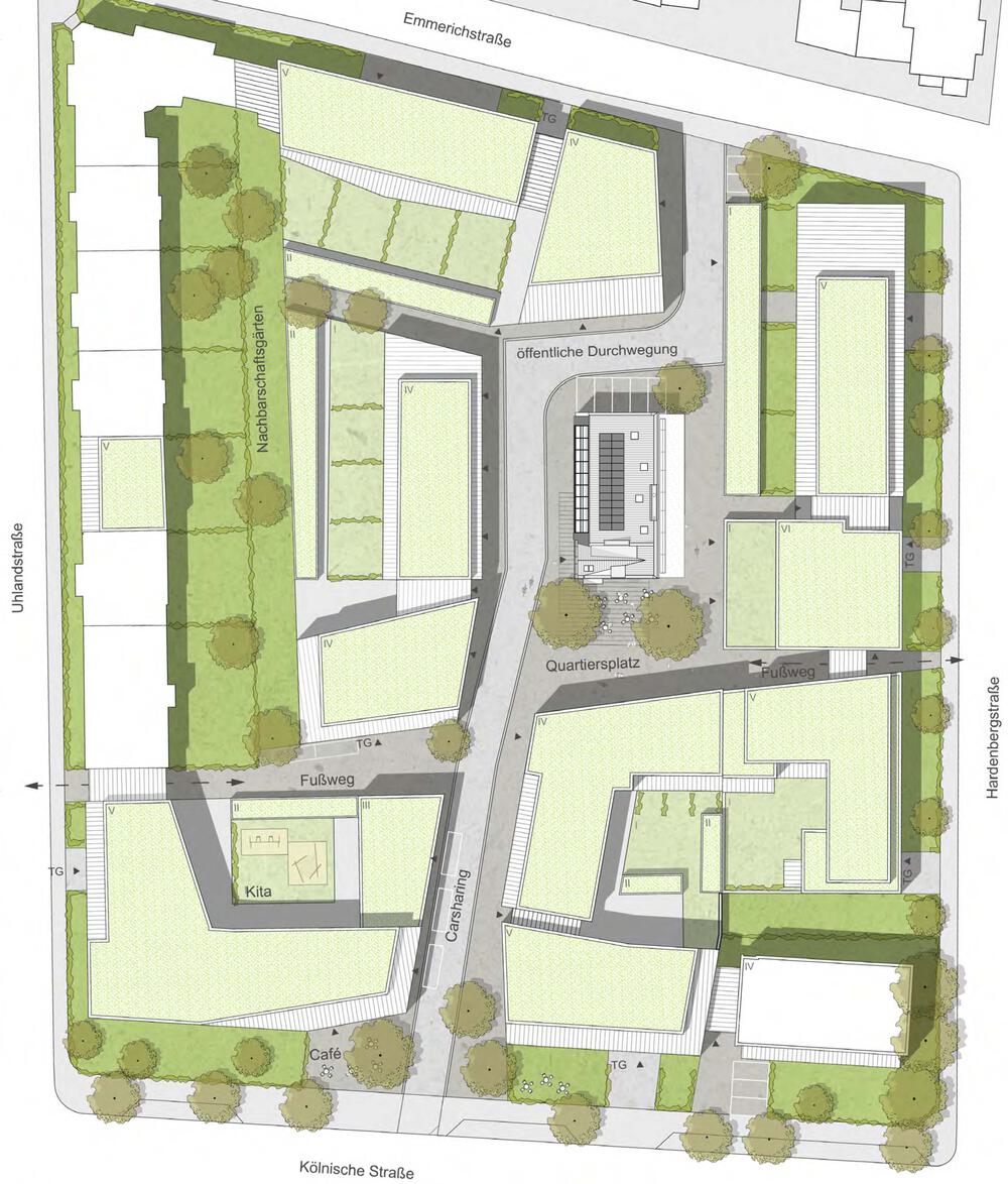
Die rund 1,5 ha große Fläche der ehemaligen Martini-Brauerei wird zu einem neuen Siedlungsbaustein im Kasseler Vorderen Westen entwickelt. Das Projekt zielt auf Schaffung eines Quartiers mit kleinteiliger Nutzungsmischung, unterschiedlichen Wohnangeboten und sozialer Vielfalt mit Bau- und Wohnungsangeboten für private Baugemeinschaften, soziale Träger, Genossenschaften und lokale Wohnungsbau-Investoren.
Anknüpfend an vorhandene gründerzeitlich geprägte Strukturen des Stadtteils zielt das städtebauliche und freiraumplanerische Konzept auf eine Wertschätzung gegenüber dem Allgemeingut öffentlicher Raum, Schaffung hoher Aufenthalts- und Gestaltungsqualität, flexible Nutzbarkeit sowie gemeinschaftliche Gartenbereiche.
In das ehemalige Sudhaus sind inzwischen ein Restaurant und unsere erweiterte Bürogemeinschaft eingezogen.

Für weitere Stadtbausteine wie Block 1 und Block 2 (Genossenschaft) sowie die Baugemeinschaften L19 und U10 waren wir auch als Architekten planerisch tätig.

Aufgabe: Entwicklung eines urbanen Quartiers
Leistung: Städtebauliches Konzept, Bauleitplanung
Auftraggeber: Einbecker Brauerei, MQ PEG
Umfang: 15.000 qm
Realisierung: 2016-2023
Auszeichnungen:
2018 Polis Award 3. Preis
2019 Best Practise Wohnungsbau in Hessen
2020 Auszeichnung Vorbildlicher Bauten im Land Hessen, Nominierung Shortlist

mit: Bankert, Linker & Hupfeld

Martini-Quartier - Lageplan

Lageplan

Schema Martini-Quartier Kassel
Lageskizze Martini-Quartier Kassel
Martini-Quartier - Stadtbaustein

Stadtbaustein

Martini-Quartier Suffizienzhaus U10 - Luftbild

Luftbild

Martini-Quartier Am Alten Sudhaus

eh. Sudhaus