foundation5+ architekten

Projekte

Kita Housing Area Friedberg

Kita Housing Area Friedberg Ansicht Freianlage

Neubau Kita Housing Area, Friedberg

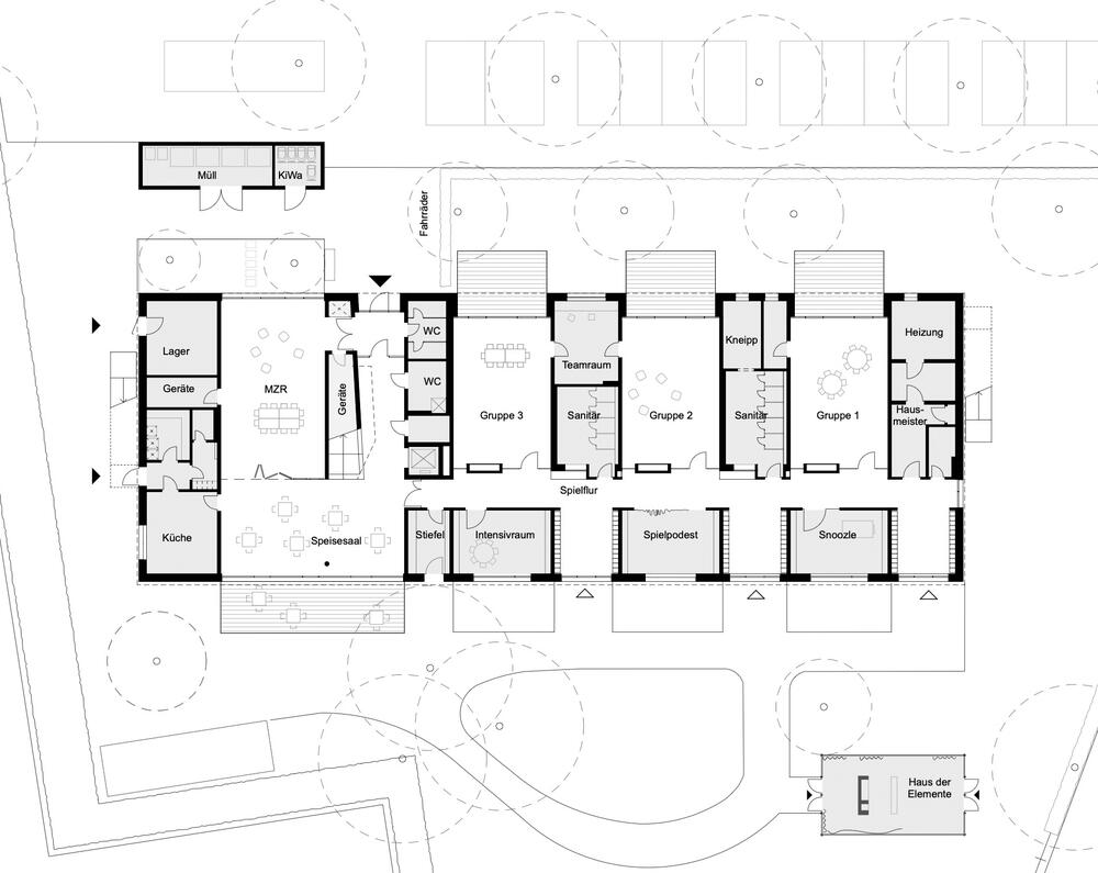
Die Kita ergänzt das mittlerweile fast fertig gestellte Neubaugebiet „Housing Area“ im Bereich einer ehemaligen Kasernenanlage. Der Grundriss ist entwickelt aus einer Komposition „geschlossener Raumvolumen“ für Neben- und Sanitärräume und offener, transparenter Gruppenräume und Bewegungsflächen. So entstehen differenzierte Raumqualitäten und fließende Übergänge in den Freiraum. Die Fassade besteht aus gefaltetem Aluminiumblech, das in Teilbereichen als gelochtes Blech einen feinen Filter vor dem Fenster bildet. Durch die unregelmäßige Faltungen entsteht die Assoziation eines umlaufenden Vorhangs. Im Spielflur sind die Bezüge zwischen Baukörpern, offenen Räumen und Lichteinfall durch die Farbgestaltung von Wand und Boden akzentuiert. Die 6 Gruppenräume selbst sind zurückhaltend gestaltet. Als besonderes Raumangebot bietet die Kita neben Snoozle- und Kneippraum ein freistehendes, verglastes Spielhaus, in dem die natürlichen Elemente Licht, Sonne, Wasser und Wärme erforscht und erfahren werden. Der kompakte Neubau ist energieeffizient geplant und bietet neben außenliegendem Sonnenschutz auch ein mechanisch unterstütztes Lüftungskonzept zur Nachtkühlung in den Sommermonaten. Auf dem begrünten Flachdach sind Photovoltaikanlagen zur Stromgewinnung aufgestellt.

Aufgabe: Neubau
Leistungen: LPH 1-9
Auftraggeber: Magistrat der Kreisstadt Friedberg
Umfang: 1.600 qm BGF
Fertigstellung: 2020
mit: HHS Baumanagement GmbH
Auszeichnung: Wettbewerb 1.Preis

- Foto leer 8x2 quer
Kita Housing Area Friedberg Piktogramm

Konzept

Kita Housing Area Friedberg Spielflur EG
Kita Housing Area Friedberg Lageplan

Lageplan

- Foto leer 16x9 quer
Kita Housing Area Friedberg Gebäudeflucht
Kita Housing Area Friedberg Ansicht Spielplatz
Kita Housing Area Friedberg EG

Erdgeschoss

Kita Housing Area Friedberg Galerie
Kita Housing Area Friedberg Treppe
Kita Housing Area Friedberg OG

Obergeschoss

- Foto leer 16x9 quer 2
Kita Housing Area Friedberg Spielflur OG
Kita Housing Area Friedberg Garderobe
Kita Housing Area Friedberg Gruppenraum