foundation5+ architekten

Projekte

Gebäudeensemble Sternbergstraße

Wohnprojekt Sternbergstrasse - Gartenansicht

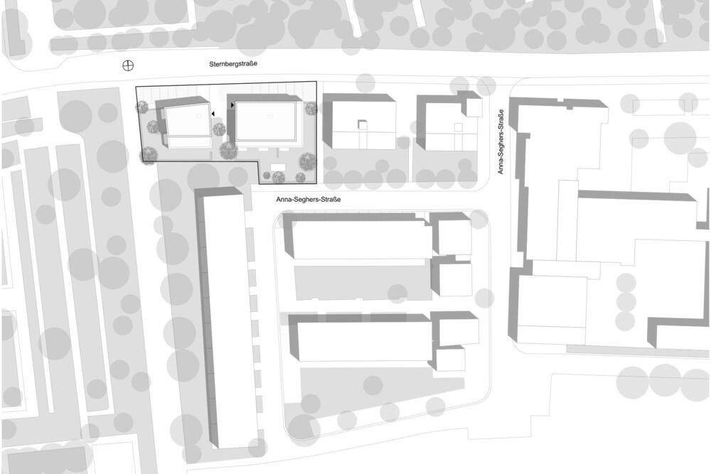
Das Gebäudeensemble bildet einen Auftakt des Wohnquartiers Sternbergcarrée zu den angrenzenden Grün- bzw. Friedhofsflächen. 

Das Gebäude West ist Eckgebäude zur Grünflächen ausrichtet.
Das Gebäude Ost ist als liegender Baukörper konzipiert, der die Taktung der Nachbarbebauung aufnimmt und die zulässige Baukörperlänge voll ausnutzt. Im Erdgeschoss sind straßenseitig der Gemeinschaftsraum sowie die Abstellräume vorgesehen. Die Fassadengestaltung aus Faserzementplatten in unterschiedlichen Grautönen gliedert den Sockel des Gebäudes.
Der gemeinsame Eingangsbereich liegt in der Fuge zwischen beiden Baukörpern - als nachbarschaftlicher, begrünter Erschließungshof mit Fahrradgarage.

Mit Ausnahme der erdberührten Teile wurde im Sinne einer nachhaltigeren Bauweise monolithisch gebaut und - statt WDVS und Dünnputz - hier ein hochwertiger Kratzputz eingesetzt.

Die beiden Häuser stehen für die Realisierung von bezahlbarem Wohnraum im städtischen Kontext, ohne auf differenziert nutzbare, abgestufte private und gemeinschaftliche Räume - innen wie außen - zu verzichten.

Aufgabe: Neubau
Umfang: 17 WE, Gemeinschaftsraum, 4.820 qm BGF
Leistungen: LPH 1-4, 5 (teilweise)
Fertigstellung: 2022
Auftraggeber: Vereinigte Wohnstätten 1889e eG 
Fotos: Ulli Rüsing, Sprengwerk

Wohnprojekt Sternbergstrasse - Lageplan

Lageplan

Wohnprojekt Sternbergstrasse - Erdgeschoss

Erdgeschoss

Wohnprojekt Sternbergstrasse - Straßenansicht quer
Wohnprojekt Sternbergstrasse - Straße und Zugang
Wohnprojekt Sternbergstrasse - Obergeschoss

Obergeschoss

Wohnprojekt Sternbergstrasse - Dachgeschoss

Dachgeschoss