foundation5+ architekten

Projekte

Wohnen in der "Grünen Mitte Ebertal" (III)

Wohnungsbau Grüne Mitte Ebertal Göttingen - Straßenfassade

Im Rahmen der Sanierung und Neuordnung des Quartiers „Neue Mitte Ebertal“ ersetzt die Städtische Wohnungsbau GmbH Göttingen in mehreren Bauabschnitten Wohngebäude der Nachkriegszeit durch flächen- und energieeffiziente Neubauten im geförderten Wohnungsbau.

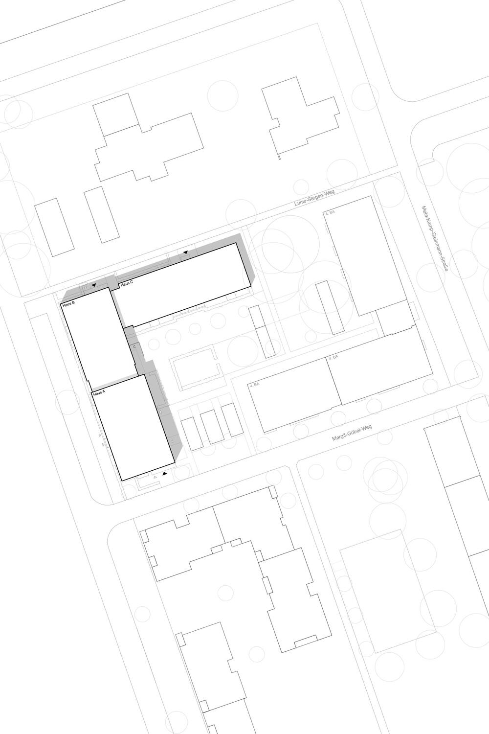
Im 3. Bauabschnitt entstehen 3 Gebäude mit insgesamt 42 barrierefreien Mietwohnungen sowie gemeinschaftlichen Nutzungsangeboten wie z.B. Trockenraum, E-Bike-Station und „Studio“ als temporäre Wohnraumergänzung. 4 Wohnungen sind vollständig rollstuhlgerecht. Der Freiraum wird mit Terrassen, Gärten und Wegen vollständig neu angelegt. 

Die Gebäude erhalten jeweils einen eigenständigen Charakter und nehmen gleichzeitig als Ensemble aufeinander Bezug. Die Eigenständigkeit wird betont durch unterschiedliche Geschossigkeiten, der Topografie entsprechend versetzte Erdgeschoss-Ebenen, Fassadenrücksprünge und eigenständige Erdgeschossgestaltung.

Der Energieeffizienz-Standard EH55 EE wird ohne zusätzliche Außendämmung in einer monolithischen Bauweise erreicht.

Aufgabe: Neubau
Leistungen: LPH 1-4
Auftraggeber: Städtische Wohnungsbau GmbH Göttingen
Umfang: 4.400 qm BGF R
Fertigstellung: 2024
mit: Planungsgruppe Wagener GmbH (LPH 5-9)

Wohnungsbau Grüne Mitte Ebertal Göttingen - Lageplan

Lageplan 3. Bauabschnitt

Wohnungsbau Grüne Mitte Ebertal Göttingen - Erschließungsweg

Fassade Erschließungsweg

Wohnungsbau Grüne Mitte Ebertal Göttingen - Eingangsfassade
Wohnungsbau Grüne Mitte Ebertal Göttingen - Hoffassade

Hoffassade